Previous
MONASTERY OF OUR MOTHER OF MERCY & ST JOSEPH
Alexandria, South Dakota
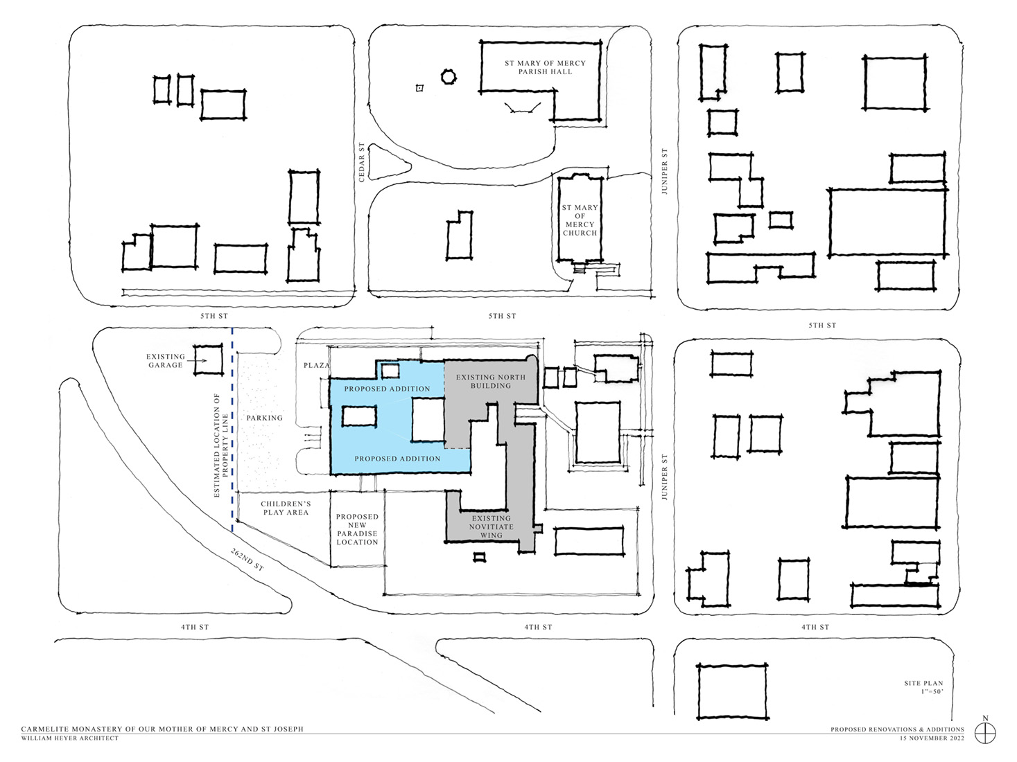
The Discalced Carmelite nuns of Alexandria, South Dakota reside in a ranch-style building that last received an addition in 2001. The nuns requested a design for additions including a new chapel and choir with the original windows of the former Carmelite church in Chicago (now the Shrine of Christ the King), a priest’s residence, additional cells, and a guest suite, all according to the requirements of the nuns’ enclosure. Site additions include a mausoleum and a cemetery as well as additional off-street parking for guests and visitors.
Our proposed additions create two courtyards that recall the cloisters of a traditional monastery. The design of the chapel strikes a balance between the small size of the congregation and the large windows; its materiality matches the 1907 Catholic church nearby. Adjoining the chapel is the nuns’ new choir, with bell tower above.
Although architectural design was essential to the public fundraising campaign, intensive campus and enclosure planning was required to bring about the final approved arrangement of buildings on the site.