ORATORY OF ST FRANCIS
University of Saint Francis, Fort Wayne, Indiana
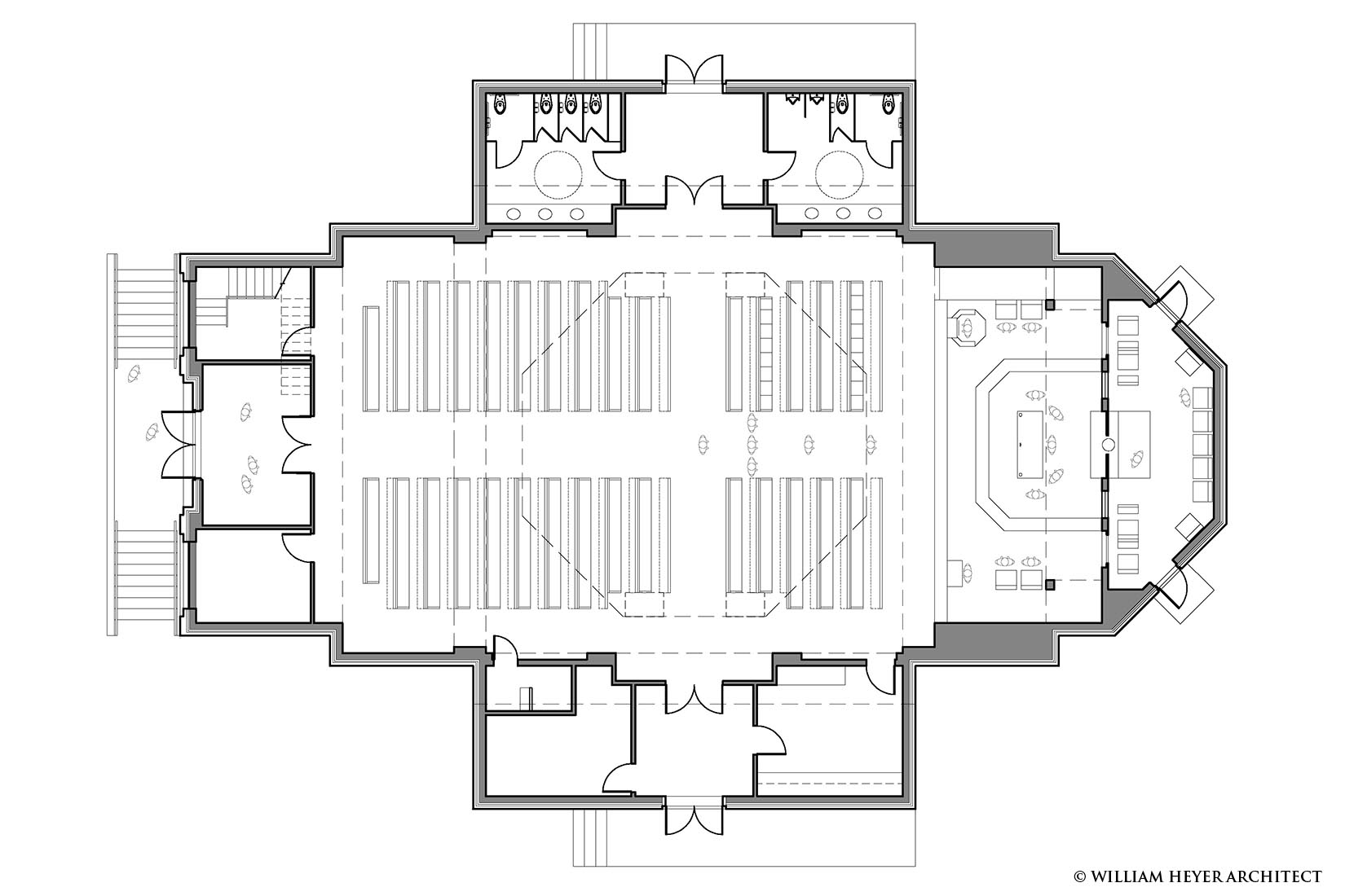
Our commission here was to locate and design a new chapel for the University community so that the architecture and planning fused with the existing buildings and topography. We placed the new chapel in the heart of the campus along the central lake so that it would be visible from all corners of the campus, a reminder that Christ is the center physically and spiritually of the university.
Using sacred geometry, the 300-seat chapel expresses an ordered and contemporary interpretation of Romanesque and Byzantine monumentality. The Greek cross fused with the octagon cupola and temple-like porticoes give expression to the strength, beauty, and continuity of Christian architecture through the ages.
Architect of Record: Design Collaborative